青岛七彩种业科技_高端水产种业领军企业 _墨瑞鳕_三文鱼_鱼苗_加工品_循环水养殖技术服务_全产业链供应商 logo

  • 邮箱地址qicai_seed@163.com
  • 联系电话+86 0532-58201577
  • 地址青岛莱西市河头店镇小莱路10号
EN

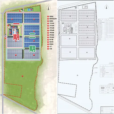
青岛七彩种业科技有限公司莱西园区

  建设内容:项目占地150亩,其中设施农业用地100亩,规划总建筑面积40110㎡,包括高端鱼类种业与养殖示范中心21600㎡、水肥一体化温室16200㎡、配套设施2310㎡;另外50亩改造成水田和高标准农田。

技术流程:应用工业化高密度循环水生产模式进行鱼类种业生产和示范养殖生产;养殖尾水经微生物处理后实现水肥一体化,用于温室水培和土壤种植;在厂房屋顶铺设光伏,应用可再生新能源,提供项目部分用电;应用数字化和物联网技术,实现生物全生命周期监控、工业化循环水养殖系统智能调控以及线上销售、产品质量溯源、运用区块链技术进行质量控制等。

该园区主要是墨瑞鳕、三文鱼等水产品种的种业基地。

在线留言